Villa Toscane
Ce projet de construction d’une villa à Saint-Jeannet a été conçu en collaboration avec PIQUÉ ARCHITECTURE. Le permis de construire a été obtenu en septembre 2025. Implantée sur un terrain en pente au cœur du paysage des Alpes-Maritimes, la maison s’inscrit dans la topographie naturelle du site afin de limiter les mouvements de terre et d’intégrer la construction à son environnement.
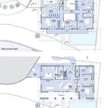
L’accès principal et le garage se situent au niveau haut de la parcelle, permettant d’entrer dans la maison par la partie supérieure du volume bâti. Cette implantation accompagne la pente du terrain et organise naturellement la distribution des différents niveaux de la villa.
L’architecture extérieure adopte une composition très ordonnancée inspirée de l’architecture classique italienne, et plus particulièrement des palais toscans. La façade se structure autour d’un vocabulaire architectural traditionnel composé d’arcades, de corniches, de pilastres et d’un soubassement marqué. Cette écriture rigoureuse confère à la villa une présence élégante et intemporelle, en dialogue avec l’histoire architecturale méditerranéenne.










À l’intérieur, le projet révèle un tout autre registre. À la demande du maître d’ouvrage, les espaces ont été conçus dans un esprit résolument contemporain qui vient créer un contraste assumé avec la façade plus classique. Le cœur de la maison est marqué par un vaste salon cathédrale en double hauteur qui apporte une grande générosité volumétrique. Une passerelle traverse cet espace à l’étage, reliant les différentes zones de nuit tout en offrant des perspectives spectaculaires sur le séjour.
Un bloc central habillé en bois noble structure l’organisation intérieure. Ce volume regroupe les espaces techniques de la maison, notamment le cellier et la buanderie, et constitue le pivot autour duquel s’articulent les différents espaces de vie. Il accueille également l’escalier principal qui se prolonge jusqu’à la passerelle, participant à la mise en scène verticale du salon cathédrale.
L’ensemble du projet accorde une attention particulière à la qualité des matériaux et des finitions. Les aménagements intérieurs ont été dessinés sur mesure afin d’offrir des espaces à la fois fonctionnels et élégants. Les menuiseries extérieures font également l’objet d’un travail spécifique avec des ouvertures cintrées, des baies coulissantes à galandage sur toute la largeur de certaines pièces et une grande baie arquée toute hauteur dans le hall d’entrée. Ces éléments participent à la générosité des espaces et renforcent la relation entre l’intérieur et le paysage.
À travers cette réalisation, le projet cherche à concilier une architecture extérieure inspirée de la tradition classique méditerranéenne avec un intérieur contemporain, lumineux et ouvert. L’ensemble compose une villa où le dialogue entre héritage architectural et modernité s’exprime à travers la qualité des volumes, des matériaux et des détails constructifs.
